huspy-logo
Huspy logo

https://docs-cdn.huspy.net/01KPZQAM36GF201FF2R7KK04YX
https://docs-cdn.huspy.net/01KPZQAM3D0XECV014840NQ9FB
https://docs-cdn.huspy.net/01KPZQAM2H33WYHD3XBRQQZ41M
https://docs-cdn.huspy.net/01KPZQAM2R2JJZ0HZNANXY7X2Q
https://docs-cdn.huspy.net/01KPZQAM2ZJ30THYRM73DYSK1Q

¡Explora más inmuebles similares a este!

Ver más inmuebles

1.750.000 €

3.500 €/m²


Casa en Venta en Calle Castillo de Alarcón

Independiente


Calle Castillo de Alarcón - Madrid Norte

500 m²
5
4

Norte

Calcular hipoteca estimada

Otros detalles de la propiedad

  • Terraza

  • Plaza de garaje

  • Armario empotrado

  • Aire acondicionado


Descripción

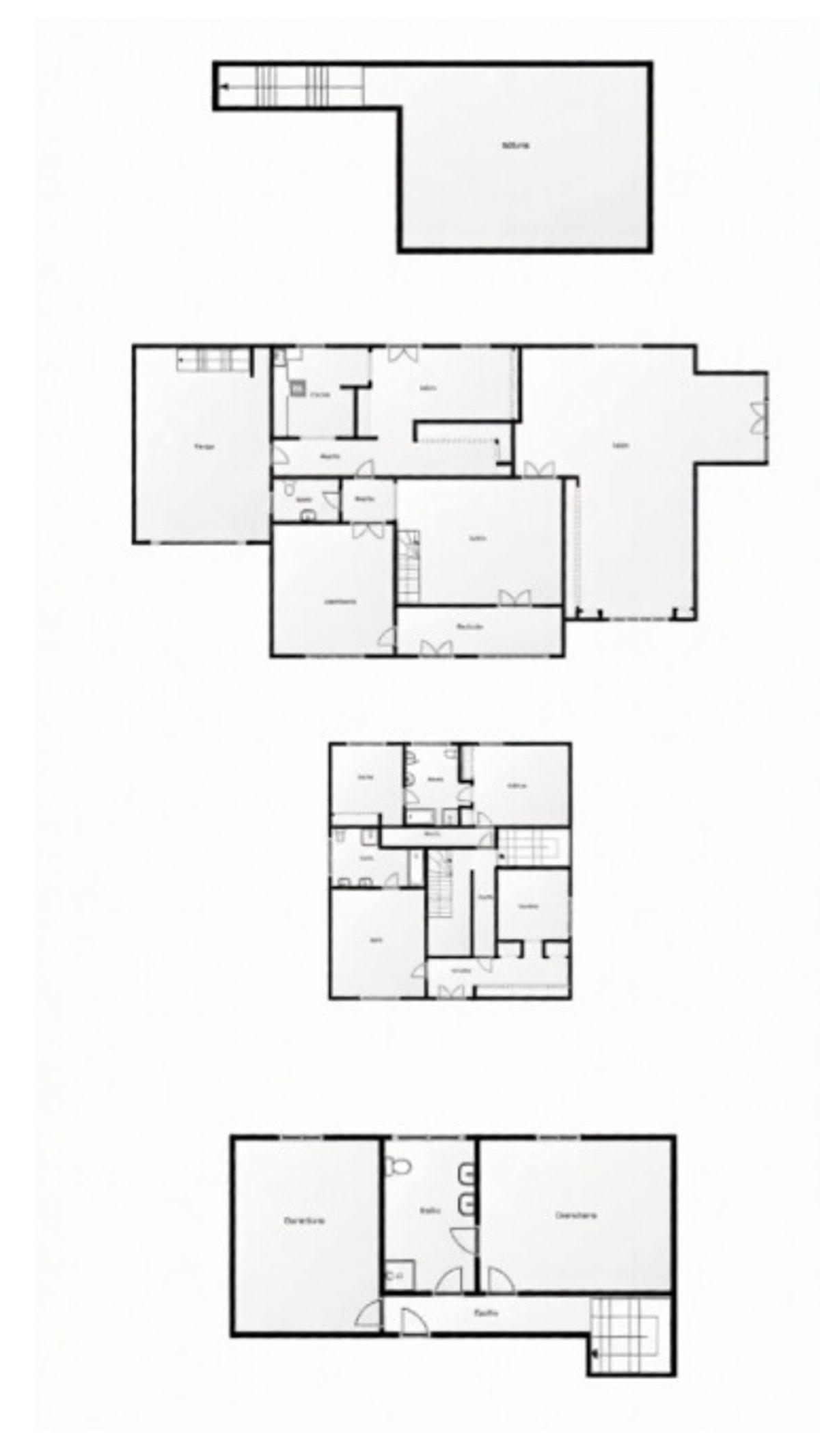
Adéntrate en el confort y la distinción de este magnífico chalet independiente situado en Villafranca del Castillo, una de las áreas más exclusivas del noroeste madrileño. La vivienda, con 500 m² construidos repartidos en tres alturas, se asienta sobre una amplia parcela de 2.475 m², de los cuales 2.233 m² corresponden a un cuidado jardín que garantiza privacidad y bienestar en un entorno privilegiado. La casa dispone de cinco dormitorios y cuatro baños, concebidos para ofrecer el máximo nivel de confort. En la planta principal encontramos un espacioso recibidor, un aseo de cortesía recientemente renovado, un gran salón independiente con chimenea y salida directa al jardín, una sala de estar o despacho, y una cocina de generosas dimensiones que incluye zona de office y área de lavandería. En la primera planta se ubican tres dormitorios, destacando el principal, que cuenta con baño en suite, vestidor, despacho propio y acceso a una terraza privada. Los otros dos dormitorios, pensados especialmente para un uso juvenil, comparten un baño con acceso desde ambas estancias, lo que aporta funcionalidad. La buhardilla alberga dos dormitorios adicionales junto a un baño completo. En el sótano, la vivienda ofrece un espacio de 28 m² perfecto como trastero o bodega. Entre sus calidades destacan la carpintería de madera tanto interior como exterior, calefacción individual, aire acondicionado y sistema de seguridad. Además, dispone de dos plazas de garaje y orientación sureste, lo que favorece una excelente entrada de luz natural durante todo el día. Villafranca del Castillo es una urbanización residencial de alto nivel, rodeada de naturaleza y con un ambiente tranquilo y seguro. Ofrece la combinación perfecta entre privacidad y proximidad a servicios esenciales y opciones de ocio. A escasa distancia se encuentra el prestigioso colegio internacional SEK-El Castillo, reconocido por su alto nivel académico. En cuanto a comunicaciones, las líneas de autobús 623 y 626 conectan la zona con Las Rozas y Majadahonda, mientras que la estación de Cercanías de Las Rozas (líneas C-7 y C-10) permite un acceso rápido a Madrid. Para compras y entretenimiento, el Centro Comercial Gran Plaza 2 está a menos de 15 minutos, con una variada oferta de tiendas, restauración y servicios. Además, la zona cuenta con espacios verdes y áreas deportivas, ideales para disfrutar al aire libre y en familia.

Ubicación

La ubicación exacta se proporcionará antes de la visita

Calcula el valor de la hipoteca

Te ayudamos a encontrar la hipoteca con las mejores condiciones.

Precio de tu propiedad

Entrada

Duración de la hipotéca

Cuota mensual *

6.351,37 €

Número de cuotas

300 cuotas

Duración de la hipotéca

25 años

Tipo interés (estimado)

2,6%

Total desembolso

1.905.411,93 €

Más información*

Esta estimación ha sido realizada teniendo en cuenta condiciones generales sobre la tasa de interés y otros conceptos. Para obtener una estimación más acertada, ponte en contacto con nuestro equipo.

Te ayudamos a encontrar la hipoteca con las mejores condiciones.

¿No te gusta?

 Contacta con nosotros y te ayudamos.

1.750.000 €

3.500 €/m²


¿Te interesa?

Déjanos tus datos y nos pondremos en contacto contigo lo antes posible.


Ver número de teléfono

Contáctanos en cualquier momento

Huspy: Vender lo inimaginable

Huspy logo

C. de Alcalá, 108

28009, Madrid, España.

+34 919 03 91 93


© 2022 - 2024 Huspy Iberia SLU. HUSPY, HUSPY Stylised, and the HUSPY Sphere Logo, are trade marks or registered trade marks of the Huspy group of companies in Spain and certain other countries. All rights reserved.