huspy-logo
Huspy logo

https://docs-cdn.huspy.net/01KP4ETPG37EPCGSGECAW3MDW0
https://docs-cdn.huspy.net/01KP4ESSYCA4X0MPE0E4VEZA4F
https://docs-cdn.huspy.net/01KP4ERB7HDZQ8WQQA8MESB9NF
https://docs-cdn.huspy.net/01KP4ES88P607MP750NKA19Y1X
https://docs-cdn.huspy.net/01KP4ES88YWKRPXXCE5TQ6BR5J
https://docs-cdn.huspy.net/01KP4ERB7T14X9SQ69X5VHHXGR

¡Explora más inmuebles similares a este!

Ver más inmuebles

3000 €/mes


Local en Alquiler en Avenida de la Constitución

Comercio


Avenida de la Constitución - Madrid Este

511 m²
0
2

Descripción

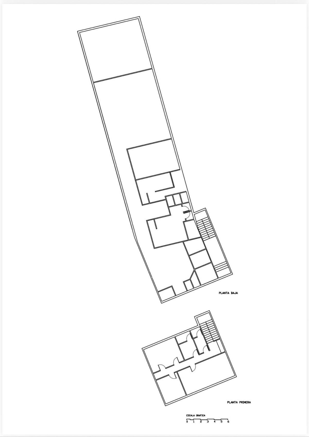
OPORTUNIDAD DE ALQUILAR – LOCAL 511 m² DE ALTA RENTABILIDAD 📍 Avenida Constitución – Torrejón de Ardoz (Madrid). Ubicado en una de las arterias principales del municipio, con paso, comercio y densidad residencial. Se alquila amplio local comercial de 511 m² en ubicación estratégica, ideal para desarrollo de modelo mixto altamente rentable. 🔹 Distribución: • Planta calle: 358 m² (gran visibilidad, ideal para cualquier actividad comercial) • Planta primera: 153 m² (perfecta para explotación independiente) ALTA DEMANDA EN LA ZONA DESARROLLO DE TRASTEROS Y CONVINAR CON OTRA ACTIVIDAD: Local a reformar o actualizar→ para iniciar y adaptar para tu negocio. • ✔ Planta calle → Planta 1 desarrollo de trateros + actividad, supermercado, gimnasio, clínica, fitness boutique, academia, academia, coworking etc. ✅ Ubicación con alta densidad residencial ✅ Fuerte demanda de almacenamiento urbano ✅ Excelente visibilidad y tránsito ✅ Espacio versátil y fácilmente divisible ✅ Dos baños instalados

Ubicación

La ubicación exacta se proporcionará antes de la visita

Calcula el valor de la hipoteca

Te ayudamos a encontrar la hipoteca con las mejores condiciones.

Precio de tu propiedad

Entrada

Duración de la hipotéca

Cuota mensual *

0,00 €

Número de cuotas

300 cuotas

Duración de la hipotéca

25 años

Tipo interés (estimado)

2,6%

Total desembolso

0,00 €

Más información*

Esta estimación ha sido realizada teniendo en cuenta condiciones generales sobre la tasa de interés y otros conceptos. Para obtener una estimación más acertada, ponte en contacto con nuestro equipo.

Te ayudamos a encontrar la hipoteca con las mejores condiciones.

¿No te gusta?

 Contacta con nosotros y te ayudamos.

3000 €/mes


¿Te interesa?

Déjanos tus datos y nos pondremos en contacto contigo lo antes posible.


Ver número de teléfono

Contáctanos en cualquier momento

Huspy: Vender lo inimaginable

Huspy logo

C. de Alcalá, 108

28009, Madrid, España.

+34 919 03 91 93


© 2022 - 2024 Huspy Iberia SLU. HUSPY, HUSPY Stylised, and the HUSPY Sphere Logo, are trade marks or registered trade marks of the Huspy group of companies in Spain and certain other countries. All rights reserved.